This elegant country villa, located in the outskirts of Vibo Valentia, is built over three floors and it is situated in a particular landscape area with spectacular views over the gulf of Sant Eufemia.
Internal sqm - 670 sqm
Terrace sqm - 30 sqm
Land - 8000 sqm
It is just few minutes from the center of Vibo Valentia and surrounded by one hectare of land, partly already used as an orchard
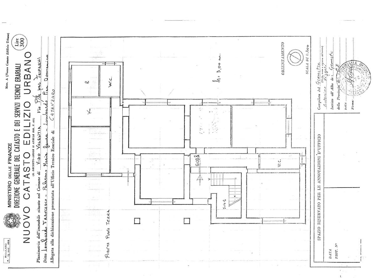
On the ground floor: entrance hall, lounge, living room or study, dining room with fireplace, bedroom and bathroom.
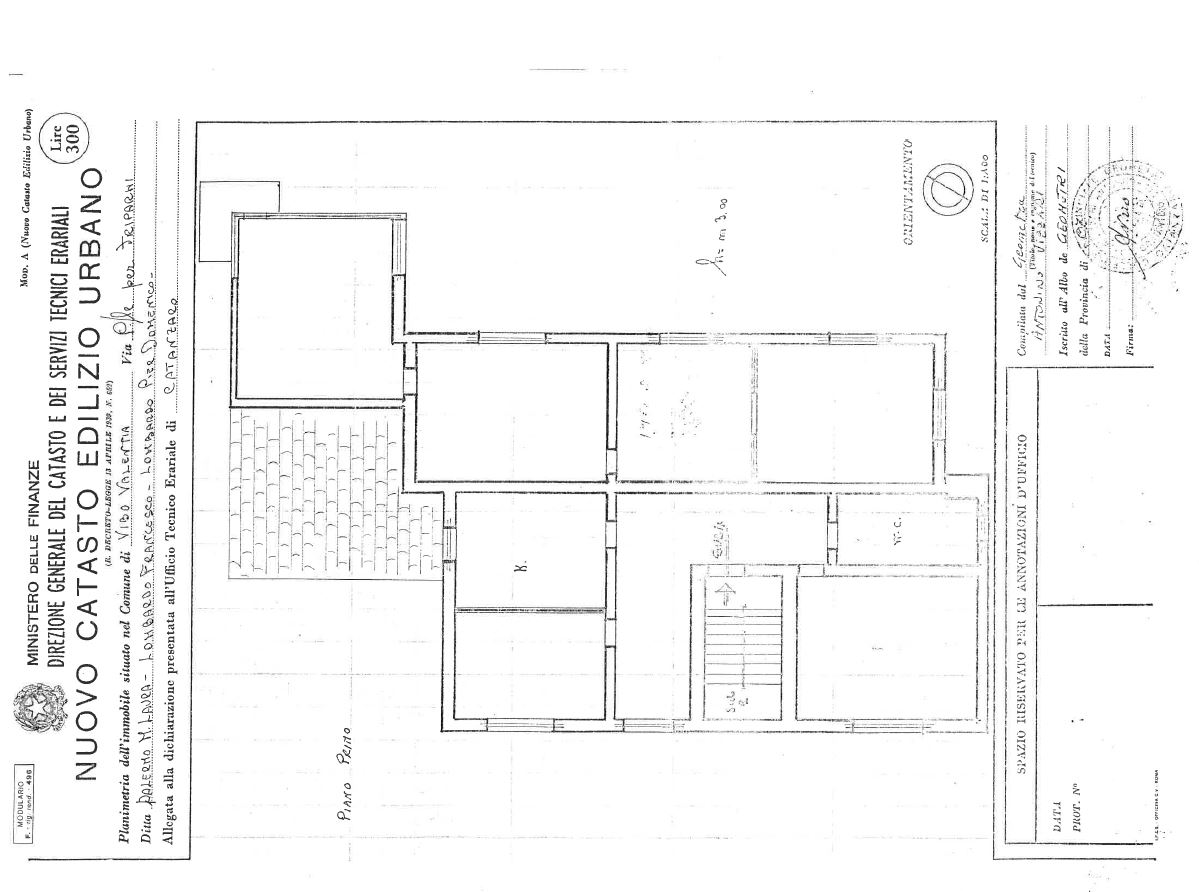
On the first floor: small living room area, kitchen, living room, study, library with fireplace, bedroom and bathroom
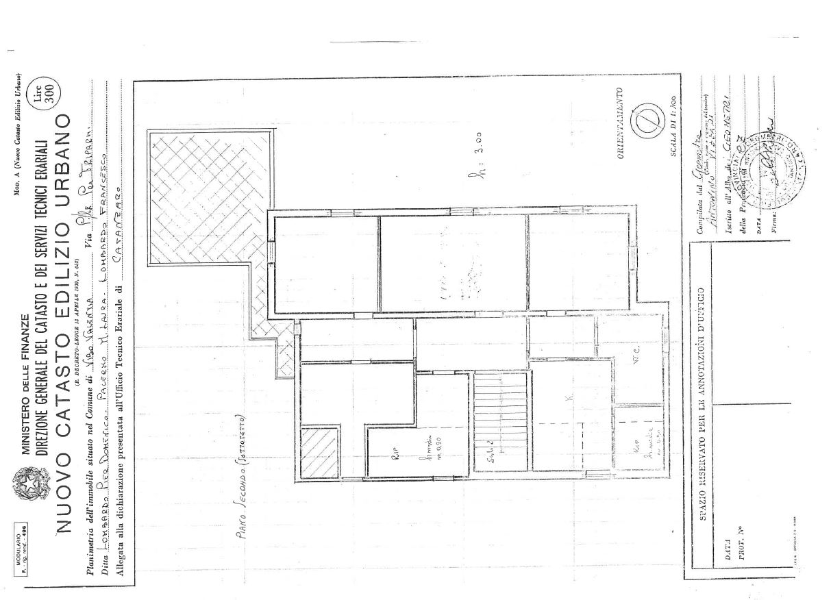
On the second floor/ attic: living room with fireplace, kitchen, two bedrooms and one single bedroom, bathroom, two storage rooms and terrace.
This property is currently used as a private residence however we feel it is also suitable to be transformed into a hotel or welfare facility for the elderly.
For more information on this property please do not hesitate to make an inquiry
Price on Application P.A.O
#windrushallianceexclusive
#villavibo
#villaforsalevibo






















