The idea for this exceptional property was born from the vision of a local entrepreneur, who set out to transform an old, outdated structure into a stunning modern home for his family in the heart of Tropea. His goal was simple yet ambitious: to eliminate the old and introduce a fresh, contemporary design that blends comfort, style, and functionality.
The redevelopment project, as submitted and currently underway, includes the complete demolition of the existing buildings (registered in the land registry) and the construction of a new reinforced concrete structure.
In line with the provisions of the local Development Plan, and given the generous land area of 1,666 square meters, the permitted building volume is calculated as follows:
which, when converted into usable area, equates to approximately 555 m² (1,666 m³ ÷ 3).
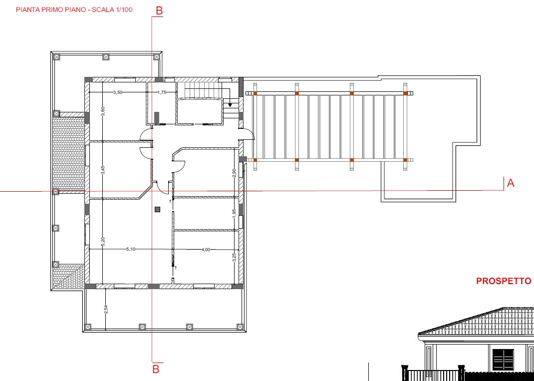
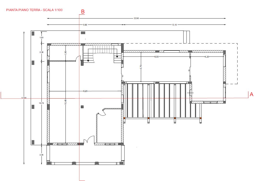
• Ground floor: approx. 195 m²
• First floor: approx. 127 m²
For a total built area of 322 m².
This means there is still the potential to construct an additional 233 m² of residential space, in accordance with planning allowances — not including additional features such as verandas, balconies, or a potential basement level.
This property presents a rare opportunity to complete a bespoke home or investment project, with significant scope for expansion in one of Calabria’s most desirable locations.
For more details information please do not hesitate to contact us further.
PRICE ON APPLICATION
#luxurybuild #villatop #villaluxury #tropeaproperty #windrushluxury


















